XGN口-12箱型固定式金属封闭开关柜(简称环网柜)适用于交流50Hz,10KV的网络作为开断负荷和短路及关合短路电流用本环网柜配手动、电动弹簧机构来操作负荷开关,接地开关和隔离开关配用手动操作机构。本环网柜成套性强、体积小、无火灾和爆炸危险,具有可靠“五防”功能。
适用范围
XGN口-12箱型固定式金属封闭开关柜(简称环网柜)适用于交流50Hz,10KV的网络作为开断负荷和短路及关合短路电流用本环网柜配手动、电动弹簧机构来操作负荷开关,接地开关和隔离开关配用手动操作机构。本环网柜成套性强、体积小、无火灾和爆炸危险,具有可靠“五防”功能。
使用环境条件
环境温度上限+40℃,下限-25°℃;
海拔高度不超过1000m;
空气相对湿度日平均值不大于95%,月平均值不大于90%;水汽日平均值不大于2.2x10-3Mpa,月平均值不大于1.8×10-3Mpa;
周围空气不受腐蚀或可燃气体、水蒸汽等明显污染;
无经常性的剧烈振动。
型号及含义
XGN□-□-□-□/□-□
└──额定热稳定电流(kA)
└──额定电流(A)
└──操作方式(J 弹簧操作 D 电磁操作
└──一次方案号
└──额定电压
└──设计序号
└──户内
└──固定式
└──箱型
使用环境条件
◆环境温度上限+40℃下限-25℃(户内):
◆海拔高度 1000m;
(水海拔超过 1000m时按 DUT593-1996《高压开关设备的共用订货技术导则》有关规定执行);
◆相对湿度日平均值不大于95%,月平均值不大于 90%:
地振烈度不超过8度;
◆没有火灾、爆炸危险、严重污染、化学腐蚀及剧烈摄动的场所。
开关柜主要技术参数
序号 | 项目 | 单位 | 数据 |
1 | 额定电压 | kV | 3、6、10 |
2 | 最高工作电压 | kV | 3.5、8.9、11.5 |
3 | 额定电流 | A | May-00 |
4 | 额定开断电流 | kA | 16.20、31.5、40 |
5 | 额定短路关合(额定短路关合电流) | kA | 40、50、80.100 |
6 | 额定短路热稳定电流 | kA | 16.20、31.5、40 |
7 | 额定热稳定电流 | kA | 40、50、80、100 |
8 | 额定热稳定时间 | s | 4 |
9 | 防护等级 | IP | IP2X |
10 | 母线系统 | - | 单母线、单母线带旁 |
11 | 操作方式 | - | 电磁式、弹簧储能式 |
12 | 外形尺寸(宽 × 深 × 高) | mm | 1100×1200×2650 (1000A 以下) |
13 | 重量 | kg | 1000 |
结构与防误装置
结构
本开关柜为金属封闭铠装结构式,柜体骨架由角钢焊接而成,柜内用钢板分隔成断路器室、母线室、电缆室、继电器室,并可通过门面上的观察窗和照明灯观察柜内各主要元件的运行情况。为提高开关柜的技术性能,各主要元件进行了重新设计(如断路器、旋转式隔离开关等)。
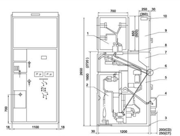
根据柜体布置,继电器室内安装继电器,门上可装设信号继电器、指示仪表、信号灯,转换开关安装与操作小室,后部为母线室,下部为电缆室,用户可方便地进行接线。前面为断路器室,方便了开关柜的检修。柜体的内部机构参见图一、图二和产品说明书。
防误装置
“五防” 功能即:防止误分、误合断路器;防止带负荷误分、误合隔离开关;防止带电关合接地开关;防止接地开关闭合时接通电源;防止误入带电间隔。
本开关柜采用了强制性机械闭锁方式,防误装置由支座、圆盘、面板、锁板、手柄、联杆等主要部件构成,具有性能可靠、功能齐全、结构简单、操作方便的特点,从而简便、有效地达到 “五防”:
(1) 带红绿牌的控制开关(KW 开关)使用于断路器方案,用于防止误分、误合断路器;
(2) 只有在断路器确实分断后,才能将小手柄从 “工作” 位置拉出右拨至 “分断闭锁” 位置;分、合闸隔离开关;防止带负荷分、合闸隔离开关。闭锁与反闭锁的可靠性具有双重的防误功能,即:小手柄处于 “分断闭锁” 位置时,只能合、分上下隔离开关,不能合断路,避免了误合断路器;
(3) 当断路器及上下隔离开关处于合闸状态,小手柄处于 “工作” 位置时,前后柜门不能打开,防止误入带电间隔;
(4) 当上、下隔离开关分闸,接地开关就不能合上,小手柄不能从 “分断闭锁” 位置拨至 “检修” 位置,可防止带电挂接地线;
(5) 接地开关未分闸,上下隔离开关就不能合上,可防止带接地线合上、下隔离开关。
XGN□ - 12/07D 外形图(图 1)

1.母线室 2.电缆室 3.接地母线 4.电磁(弹簧)机构 5.新路器室
6.手动操作及联销机构 7.操作小室 8.压力释放通道 9.仪表室 10.小母线端子
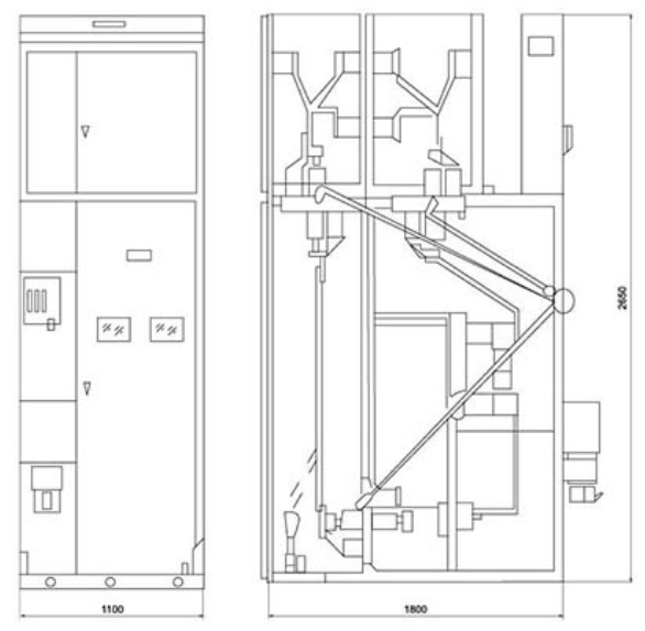
XGN 囗-12(旁路电缆出线)外形图(图 2)

外形尺寸安装图

